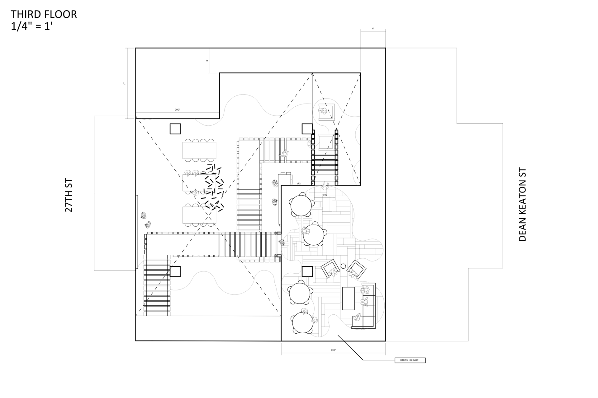
For our final project, we redesigned the atrium in the Student Services Building on campus. The building houses many of the school's health services, as well at the Dean's office. The atrium covers 3 floors and has many different programs. This project includes a physical model at 1/4" scale, FF+E, plans, a section perspective, and a first pass at renderings (this was our first time testing out Enscape).